Arten und Schemata von Viehfütterern und wie man es selbst zu Hause macht
Ein richtig ausgewählter Viehfütterer und -trinker erleichtert dem Landwirt die Arbeit und erleichtert das Füttern der Tiere. Bei der Auswahl werden die grundlegenden Anforderungen an Feeder sowie deren Art und Zweck berücksichtigt. Für eine ordnungsgemäße Ernährung der Kühe müssen separate Trinker, Behälter für Kombinations- und Trockenfutter sowie Futtertröge im Stall und auf der Weide installiert werden.
Arten von Feedern und Anforderungen an sie
Viehfutterautomaten unterscheiden sich je nach Verwendungszweck, Bauart und Material, aus dem sie hergestellt werden. Um den Prozess der Fütterung von Tieren zu etablieren, müssen Strukturen für Heu, Trockenfutter, Trinksysteme und Tröge installiert werden. Feeder für den Stall und für die Weide werden separat installiert.
Für den Stand
Wenn die Farm eine kleine Anzahl von Tieren hat, werden hängende Futtertröge und Tröge verwendet. Ein kompakter Kindergarten eignet sich für Kälber, für den Rest des Viehs - gerade oder geneigte Strukturen. Hauptmerkmale von Hanging Stall Feeder:
- Modelle vom direkten Typ - es ist bequem, Futter in sie zu laden, sie sind leicht zu reinigen;
- geneigte Strukturen - es ist leicht, Ordnung in der Scheune mit ihnen aufrechtzuerhalten, sie sind auch für Tiere bequem;
- Automatische Modelle unterscheiden sich im Preis, aber mit ihnen wird der Feed automatisiert.

Automatische Fütterungssysteme erfordern eine regelmäßige Reinigung, aber bei ordnungsgemäßem Betrieb minimieren sie die Arbeit des Landwirts. Das Futter wird in festgelegten Intervallen in einer bestimmten Menge in den Behälter dosiert.
Wenn die Scheune eine große Herde enthält, ist ein Tischtyp eine Überlegung wert. Der Fütterungstisch ist eine lange Struktur, die sich auf einem Hügel befindet, damit die Tiere leicht Futter bekommen können. Der Zuführtisch ist zusätzlich mit Trennwänden ausgestattet, um den Reinigungsprozess zu erleichtern.
Auf der Weide
Kuhfutter auf der Weide sind installiert, um das Tier den ganzen Tag mit Futter zu versorgen. Abhängig von der Art des Inhalts wird der entsprechende Feeder-Typ ausgewählt. Außerdem wird für jeden Futtertyp ein separates Design ausgewählt.

- Heuwürfel und Roste sind perforierte Strukturen. Es ist wichtig, dass das Futter nicht verstreut ist und die Kühe Zugang zum Heu haben.
- Für Getreide und Mischfutter werden automatische Modelle aus Kunststoff oder Metall-Kunststoff oder gewöhnliche Behälter aus denselben Materialien verwendet.
Einzelne Kuhfutterhäuschen werden für angebundene Unterkünfte verwendet, und für Freilandhaltung können kollektive Modelle ausgewählt werden.
Für Konzentrate und Mischfutter
Fütterungskonzentrate und Mischfutter sind für das volle Wachstum von Kühen und Bullen sowie für die Aufrechterhaltung einer hohen Produktivität erforderlich. Für landwirtschaftliche Betriebe ist es zweckmäßig, automatische Fütterungssysteme zu verwenden. Ihre Hauptvorteile sind:
- die Fähigkeit, die Fütterung ohne menschliches Eingreifen zu etablieren;
- das Vorhandensein eines Spenders;
- einfache Pflege;
- Geräumigkeit;
- Sicherheit.

Automatische Strukturen werden nicht nur in Fällen verwendet, in denen sich besonders gewalttätige Tiere in der Herde befinden, die besondere Bedingungen für die Haltung schaffen müssen.
Für Heu und Trockenfutter
Heu und Trockenfutter können verwendet werden, um Rinder sowohl im Stall als auch auf der Weide zu füttern. Für diese Zwecke ist es erforderlich, einen separaten Feeder auszustatten. Am bequemsten sind rechteckige und konische Metallzuführungen mit Gitterwänden. Die Kühe haben über den Abstand zwischen den Stangen Zugang zum vorgeladenen Heu, ohne dass das Futter im Stall oder auf der Weide verstreut wird. Dies vereinfacht den Reinigungsprozess.

Hier sind die Kriterien für die Auswahl eines Futterautomaten für Trockenfutter und Heu:
- Kapazität des Containers, die Übereinstimmung der Mengen mit den Bedürfnissen des Viehs;
- Sicherheit - Die Struktur sollte keine scharfen Ecken, hervorstehenden Elemente und Kleinteile enthalten, die von einem Tier zerbrochen werden können.
- es muss aus haltbaren Materialien bestehen;
- Viehfütterer sollten leicht zu reinigen sein.

Der Feeder sollte die Bedürfnisse der Herde decken. Für eine große Herde lohnt es sich, mehrere zu kaufen und zu installieren. Es ist notwendig, die Anzahl und die Abmessungen der Futtertröge zu berechnen, damit die gesamte Herde gleichzeitig Zugang zum Futter hat. Es ist wichtig, dass die Struktur ohne scharfe Ecken und Teile besteht, die das Tier verletzen könnten.
Wie man selbst zu Hause einen Feeder macht
Für eine kleine Herde Kühe können Sie selbst Futtermittel mit vorgefertigten Schemata herstellen.
Mit Faltwänden
Sie können einen Do-it-yourself-Feeder mit Faltwänden herstellen. Dazu müssen Sie die erforderlichen Materialien und Werkzeuge vorbereiten, die fertige Zeichnung erstellen und die schrittweisen Anweisungen befolgen.
Was Sie machen müssen:
- Stichsäge, Säge - elektrisch oder von Hand;
- Zeichnung - fertig oder nach individuellen Maßen erstellt;
- Maßband für Messbretter vor dem Schneiden;
- Schleifer und Sandpapier;
- Befestigungselemente - Nägel, Schrauben;
- Bretter - Weichholz, Eiche oder andere praktische und dauerhafte Optionen;
- Metallprofil, Eck- oder Holzlatten;
- Riegel oder Haken zur Befestigung von Faltwänden, Markisen.

Beachtung! Bei der Herstellung von Kuhfuttermitteln wird am besten Qualitätsholz verwendet. Andernfalls verformt sich die Struktur unter dem Einfluss von Feuchtigkeit oder Sonne schnell. Die beste Option ist Hartholz.
Zuerst müssen Sie Messungen vornehmen und das Holz gemäß der Zeichnung schneiden. Die Lamellen klopfen in eine Nut ohne Vorderwand - dies erfolgt separat. Die Klappwand muss mit Metalldächern an der Rinne befestigt werden, und zur Befestigung müssen oben auf beiden Seiten Haken oder Riegel angebracht werden.
Die schwenkbaren Wandtröge sind leicht zu reinigen. Die Konstruktion basiert auf dem Prinzip des Bunkermodells. Es wird in einem halbautomatischen Modus betrieben.
Gruppen-Feeder
Um eine Gruppenzuführung zu erstellen, wird Beton als Basis verwendet und ein Keramikhalbrohr wird verwendet, um eine Rinne herzustellen. Das folgende Schema ist dafür geeignet. Sie können die Länge der Rutsche abhängig von der Anzahl der Tiere ändern.

Zunächst lohnt es sich, Betonstützen herzustellen, die gut befestigt sein müssen, damit die Struktur stabil ist. Zaungitter bestehen aus Verstärkung, die mit Haltern befestigt sind.
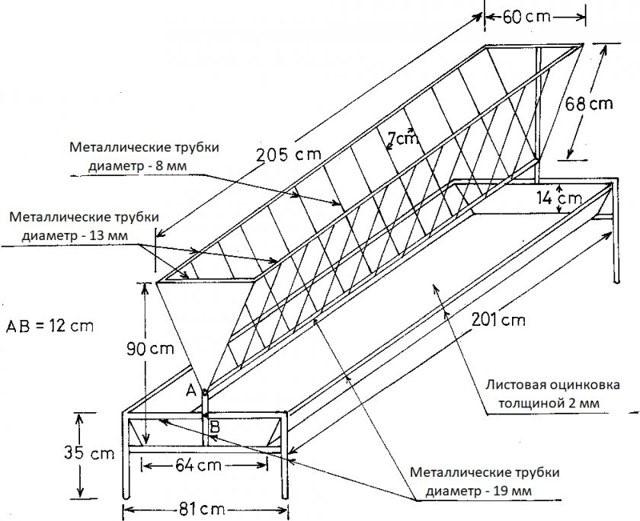
Zuverlässige und bequeme Gruppenzuführungen bestehen ebenfalls aus Metalllatten und verzinktem Blech. Ein fertiges Schema ist für die Herstellung geeignet. Sie können die Abmessungen bei Bedarf ändern.


Aus dem Bild werden Größen ausgewählt, und Sie können mit Materialien experimentieren. Sie benötigen Verstärkung, eine Metallecke oder ein Metallrohr, Hartholzlatten.
Kuhtrinker
Um die Gesundheit und die Milchproduktion aufrechtzuerhalten, müssen Kühe täglich mit sauberem Trinkwasser versorgt werden. Dafür sind Trinker ausgerüstet - gewöhnliche Behälter oder automatische Strukturen. Befinden sich nicht mehr als 5-10 Kühe in der Herde, können Tröge und Trinkwannen installiert, jedoch regelmäßig gewaschen und sterilisiert werden. Es ist wichtig, dass die Tiere jeden Tag sauberes Trinkwasser erhalten - davon hängen die Gesundheit der Tiere und die Qualität der von Kühen produzierten Milch ab.

Wichtig! Bei der Auswahl eines Trinkers müssen Sie die Bedürfnisse der Kühe berücksichtigen - jeder Erwachsene sollte 70 Liter Wasser pro Tag erhalten.
Moderne Trinker lassen sich grob in zwei Gruppen einteilen:
- Individuell;
- Gruppe.
Einzelne Trinker haben den Vorteil, das Risiko einer Ausbreitung der Infektion innerhalb der Herde zu verringern. Bisher bieten Hersteller Trinker der folgenden Typen an:
- Bechentrinker - mit Zunge oder Ventil - werden selten und nur für Tiere ohne Nasenringe verwendet, was aufgrund der Notwendigkeit einer häufigen Reinigung nicht praktikabel ist.
- Kugel- und Ventiltrinker - geeignet für offene Stifte und Weiden, auch ohne Heizkabel nicht einfrieren;
- Tränken sind die beste Option, da es sich um Behälter handelt, in denen der Wasserstand durch einen Schwimmmechanismus eingestellt wird.
- Ventiltrinker mit Schwimmermechanismus - ein praktisches Modell mit hoher Durchflusskapazität.

Trinker bestehen aus Kunststoff oder einer Kombination dieses Materials mit verschiedenen Arten von Edelstahl. Trinkschalen für Rinder müssen unter Berücksichtigung der Anzahl der Tiere und ihrer Bedürfnisse ausgewählt werden.
Die bequemste Option sind automatische Trinksysteme mit unterbrechungsfreier Wasserversorgung und Frostschutz.
Richtig ausgewählte Viehfütterer und -trinker erleichtern die Haltung und Fütterung der Tiere. Es ist wichtig, alles so zu überdenken, dass die Fütterung automatisiert, der Reinigungsprozess im Stall erleichtert und das Volumen der Futtertröge berechnet wird, damit alle Tiere eine angemessene Ernährung erhalten.

