Types de mangeoires pour chèvres et comment le faire vous-même, instructions et dessins
Une conception bien conçue d'une mangeoire pour chèvres facilitera la vie des propriétaires et vous permettra d'organiser correctement la prise alimentaire. Et il sera plus facile de nettoyer après les chèvres, sous réserve des conditions d'alimentation au même endroit. Il existe plusieurs solutions standard, des options de mise en œuvre à domicile. Tous seront considérés, étudiés en détail avec l'attachement de vidéo, de dessins.
Rendez-vous
Un distributeur est considéré comme un dispositif spécial conçu pour une distribution contrôlée, une consommation d'aliments sûre et, de préférence, de conception simple. Les éleveurs de chèvres expérimentés savent qu'un animal peut être difficile en matière de nourriture.
L'auge organise le processus d'alimentation lui-même. La chèvre n'est pas un homme. Elle ne comprend pas pourquoi il est impossible de disperser l'herbe autour du corral, puis de marcher dessus avant de manger. Avec un compartiment spécial, les propriétaires de chèvres auront moins de soucis et les animaux seront plus organisés.
Exigences de base pour tout type d'alimentateur
Quelle que soit la conception du chargeur, il doit répondre à certaines exigences. Surtout lorsqu'il s'agit d'un appareil fait maison, pas fabriqué en usine. Ceux-ci inclus:
- Sécurité. La conception doit exclure la possibilité de blessures aux animaux, y compris les jeunes animaux.
- Simplicité. Les artisans à domicile ne disposent pas de machines et d'équipements sophistiqués. Par conséquent, l'option de fabrication doit être liée à un minimum de coûts d'achat d'équipements, d'outils spéciaux, de matériaux.
- La sécurité alimentaire. C'est l'une des tâches principales pour lesquelles un feeder est créé. Il est important qu'il soit facile d'y mettre du fourrage, de l'ensilage, de l'herbe et tout aussi facilement nettoyé des restes du «repas».

Telles sont, en bref, les conditions de base pour la mise en œuvre du projet. Reste à choisir l'option qui vous plaît, pour commencer la fabrication.
sécurité
Les chèvres domestiques commencent souvent à se comporter de manière imprévisible: diviser le territoire, organiser des combats ou sauter, escalader certaines structures, tout comme leurs compagnons sauvages. L'essence d'une mangeoire sûre est d'exclure la possibilité de blessures aux animaux, d'éviter l'oppression des jeunes animaux par leurs aînés.
Simplicité de conception
Nous savons par la pratique que les solutions simples ne sont pas toujours les pires. L'éleveur n'a pas le temps de faire des calculs complexes, fabriquant un alimentateur en utilisant des matériaux et des technologies modernes. Et il n'y a généralement pas non plus d'argent supplémentaire pour cela.Vous avez besoin d'une conception d'alimentation pour chèvres simple et facilement réalisable dans la plupart des situations. Il est souhaitable d'être récupéré par une seule personne et pour une durée minimale (journée, week-end).
Conservation des aliments
Les aliments conventionnels peuvent être trouvés n'importe où. Et dans ce cas, les chèvres n'ont pas d'endroit spécifique pour manger. Une autre chose est le chargeur. Ainsi, les chèvres s'habitueront à manger dans un coin strictement établi du corral et du fourrage, et beaucoup moins de nourriture liquide disparaîtra. Ne serait-ce que parce qu'il deviendra plus difficile pour la chèvre de la sortir de la mangeoire.
Structures typiques pour nourrir un troupeau de chèvres
Selon le type d'aliment, il existe plusieurs types de conceptions. Il est très important de comprendre cette circonstance. Les mangeoires en vrac ne sont pas comme les dispositifs d'alimentation liquide pour chèvres. Par conséquent, ils sont différents dans la manière dont ils sont mis en œuvre. En conséquence, vous devez savoir à l'avance quelle option vous sera préférable. Donc, les types typiques de mangeoires:
- pour l'alimentation en vrac;
- pour un mélange liquide;
- pour la nourriture végétale.
Et puis nous examinerons chaque design séparément avec ses avantages et ses inconvénients.

Alimentation en vrac
Parmi les propriétaires de chèvres, les suivants sont populaires: aliments mélangés, son, mélanges de céréales. Ils sont classés dans la catégorie à écoulement libre. Ce choix est justifié, car il permet aux animaux de prendre du poids, de prendre du gras. Quant à la conception de la mangeoire, elle doit répondre à 2 critères: la sécurité de l'aliment et la consommation maximale de celui-ci par les chèvres.
Alimentation liquide
Les mélanges de fractions liquides sont populaires en raison des divers composants qui peuvent y être ajoutés. Y compris les silos, vinasse, céréales, dilués avec de l'eau jusqu'à la consistance requise. Dans ce cas, l'auge doit être constituée d'un système de tuyaux, une auge spéciale. Une conception de mélange sec ne fonctionnera pas ici.
Matériel végétal comestible
Une catégorie distincte est constituée des mangeoires pour le foin et autres aliments végétaux pour chèvres.Il faut s'assurer que les chèvres ne traînent pas le fourrage, ne le dispersent pas sur toute la surface de l'enclos. Le sennik, assemblé à partir d'une caisse en bois, s'effilant progressivement vers le bas, remplit au mieux ces conditions. D'autres options sont également possibles.

Outils nécessaires
Avant de commencer la mise en œuvre de l'idée, vous devez prendre soin de l'équipement requis. Malgré le choix des structures les plus simples et faciles à assembler, il est impossible de se passer d'outils et d'appareils. Il est recommandé d'utiliser du bois commun, des barres, des planches et des lattes comme matériau principal. Ils sont faciles à acheter dans n'importe quelle scierie, entrepôt.
Les outils pour travailler avec eux comprennent:
- scie à métaux ou scie sauteuse électrique, scie circulaire à main;
- perceuse électrique, tournevis;
- marteau de ferronnerie;
- mètre, règle ou ruban à mesurer.
L'équipement supplémentaire comprend: marqueur (crayon), forets, fixations (vis, clous, coins en acier), perceuses. Si nécessaire, l'ensemble est adapté aux besoins spécifiques.
Recommandations pour la fabrication de différents doseurs
La conception est influencée par le type d'aliment censé nourrir les animaux. Cela affectera les plans, les coûts de fabrication du chargeur, les choix de matériaux et d'outils. Vous devez également tenir compte de l'emplacement de la zone d'alimentation. Pour que ce soit confortable pour les animaux et les propriétaires.
Il n'est pas souhaitable d'utiliser du plastique, des polymères, du métal. Les chèvres sont quelque peu capricieuses, elles refuseront facilement de manger à la mangeoire, ce qui sent en quelque sorte «mauvais». Affecte la conception et la taille des animaux. Pour les jeunes animaux, les bébés sont plus adaptés à une crèche, d'où ils peuvent se nourrir sans problèmes.
L'une des options de fabrication est illustrée dans la vidéo:
Type de pépinière
Pour les petits enfants, une mangeoire est facile à construire en une demi-journée, même sans les compétences d'un menuisier professionnel. Autrement dit, de vos propres mains, sans équipement et mécanismes complexes. L'assemblage est réalisé en plusieurs étapes. Considérons-le étape par étape:
- Châssis inférieur.Sa taille est déterminée par le nombre d'animaux gardés simultanément dans l'enclos. Il devrait y avoir suffisamment de nourriture pour tout le monde pour que personne n'ait faim. Les pieds sont placés dans les coins: ils lient la structure, assurent la rigidité et servent de base à l'installation sur le sol.
- Bas. Rassemblé à partir de planches bien ajustées. Il est permis d'utiliser une feuille de contreplaqué épais, de panneaux de particules, de panneaux OSB. Aucun trou n'est prévu dans cet élément, sinon le flux se répandra sur le sol du stylo.
- Cadre supérieur. Se compose de barres longitudinales. Des barres transversales, de courtes longueurs de planches, des planches y sont attachées. L'étape ne doit pas être trop fréquente - les animaux ne pourront pas y mettre la tête, manger normalement.
Les étapes d'assemblage du chargeur sont présentées en détail dans la vidéo:
En bois
Vous pouvez fabriquer une mangeoire d'angle avec 2 planches ou palettes en bois. Ils sont utilisés dans la livraison de marchandises, puis jetés comme inutiles. Il ne devrait donc y avoir aucun problème avec le matériel. Une autre pépinière s'avère, mais dans une version différente.

Ou vous pouvez faire ceci:

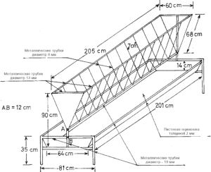
Du renforcement
S'il y a accès à des chutes de barres d'armature, ainsi qu'à une installation de soudage électrique, l'unité d'alimentation peut être en métal. La complexité de cette version de la mangeoire est plus élevée que celle d'une version en bois. Mais il est beaucoup plus fort, ce qui signifie qu'il durera plus longtemps. Les chèvres ne peuvent pas déplacer une telle pépinière, retournez-les. Mais il y a aussi des inconvénients: le risque de blessures aux animaux demeure. Les parties pointues et saillantes doivent être réduites au minimum. Ou cachez-les sous les doublures, nettoyez-les, noyez-les dans la base.
Pour faciliter la perception, un dessin du chargeur avec les dimensions est fourni.

Il existe également une variante d'alimentation en métal compact:

Et rue:

Feeders français
La France en matière d'élevage caprin a une expérience formidable, ce qui n'est pas un péché à emprunter. Les petits ruminants locaux sont similaires, mais différents des pépinières.

De par sa conception, il s'agit d'une boîte avec des trous découpés dans les murs pour s'adapter à la taille du museau de l'animal. En fait, il s'agit d'une variante d'un alimentateur universel: il est permis d'y déposer à la fois des aliments en vrac et du fourrage grossier. L'alimentation a lieu à l'intérieur de l'appareil. Cela minimise les déchets. De plus, la mangeoire française permet aux chèvres de manger presque tout ce qui se trouve à l'intérieur.
Des tuyaux
À partir des matériaux restants après le remplacement du système d'égouts, des dispositifs de drainage à la datcha, des distributeurs d'aliments prêts à l'emploi sont obtenus. Vous aurez besoin de tuyaux en plastique d'un diamètre de 10 centimètres ou plus. Il n'est pas souhaitable d'utiliser des constructions usagées qui entrent en contact avec des déchets: cela met les chèvres à risque d'infection.
La hauteur de la structure d'alimentation peut atteindre 1,5 mètre. Le tuyau est coupé en 3 sections - 700, 200 et 100 millimètres. Vous aurez également besoin d'une branche, d'un tee. En outre, les segments sont réunis, comme indiqué sur la figure. Les arêtes vives et la rugosité doivent être poncées et éliminées. Un couvercle est placé sur le dessus, le distributeur fini est fixé à la paroi du stylo à chèvre avec des pinces de plomberie.

D'un baril en plastique
Les grands mangeoires pour chèvres proviennent de contenants en plastique orphelins. Vous ne pouvez utiliser le récipient qu'après un nettoyage complet, des lavages répétés avec du savon et un séchage. Condition indispensable: le fût ne doit pas contenir de résidus de liquides toxiques, de matériaux (carburants et lubrifiants, solvants, peintures). Toutes ces substances entraîneront des maladies, la mort des animaux.
Les conteneurs endommagés avec des fissures, des copeaux, des coquilles et des trous ne fonctionneront pas. Ensuite, choisissez l'une des 2 options possibles pour organiser le chargeur - horizontal ou vertical.
Horizontal
Pour commencer, placez un canon propre et sec sur le côté.Puis marquez successivement 5-15 centimètres du bord aux extrémités, de manière à retirer le "couvercle" par le haut. La fenêtre résultante sera remplie de nourriture. Et dans les parois latérales, des trous doivent être faits pour l'alimentation (de sorte que la chèvre puisse y mettre la tête).
Il est conseillé de percer plusieurs trous dans le fond avec une perceuse fine: cela assurera le drainage du liquide, simplifiera le nettoyage du chargeur. Il reste à nettoyer les arêtes vives, à alourdir la structure ou à installer dans un coffret en bois. La partie coupée peut être transformée en couvercle en la fixant au canon avec des charnières ou une ficelle.

Verticale
Le design est plus compliqué que le précédent en ce sens qu'il sera nécessaire de marquer avec précision le canon. De manière classique, la préparation du chargeur ressemble à la lettre "G". Ces chiffres devraient se révéler 2. La hauteur de la coupe jusqu'au bord du récipient doit être égale à 20 centimètres. La couture verticale divise le canon exactement en deux. Ensuite, vous pouvez fermer la fenêtre résultante avec un maillage fin, laissant les chèvres avec une ouverture en bas. La structure est fixée à une base solide ou lestée.









